DDR Eigenheim Typ RH2 Reihenhaus – Bewertung und Begutachtung
Spezielle Immobilienbewertung für DDR Eigenheime.
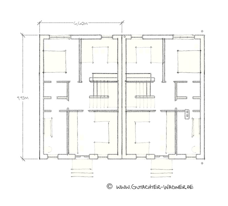
Aufgrund unserer besonderen Sachkunde und Erfahrung in diesem Wertermittlungsteilbereich können wir auch in der ehemaligen DDR projektierte und erbaute Einfamilienhäuser (sog. DDR-Eigenheime) fachkundig bewerten und begutachten.

